PROMOCJA/Dom w zab. bliźniaczej 110,42m2+antresola 16,84 -z pompą ciepła/Lisowic

Lisowice gm. Prochowice
Dodane: Wtorek, 21 Październik, 2025  19:50
590 310 zł
5366 zł/m2

Szczegóły ogłoszenia

  • Kategoria: Domy / Sprzedaż
  • Powierzchnia:110 m2
  • Liczba pokoi:4 pokoje
  • Rynek:Pierwotny
  • Rok budowy:2025
  • Sprzedaż:Pośrednik

Opis oferty

Wyjątkowa PROMOCJA - Dom poniżej 600tyś!

LISOWICE tuż pod Kątami Wrocławskimi – Wyjątkowy dom dla Ciebie i Twojej rodziny w zabudowie bliźniaczej z dużą atrakcyjną działką położony tuż obok zielonych terenów i kameralnej już zamieszkałej niskiej zabudowy.

Dostępny Dom ma powierzchnie użytkowej 110,42 m² na działce 129,65m².

PARTER to typowa strefa dzienna z dużym salonem z otwartą kuchnią z oknem o powierzchni 49,62m2, pomieszczenie techniczne na wszystkie ważne dla Domu urządzania, wiatrołap oraz toaleta z miejscem pod umywalkę. W tym domu mamy tymczasowe schody prowadzące na Piętro (brak schodów wewnętrznych na I piętro i poddasze nieużytkowe (do wykonania w zakresie nabywcy).

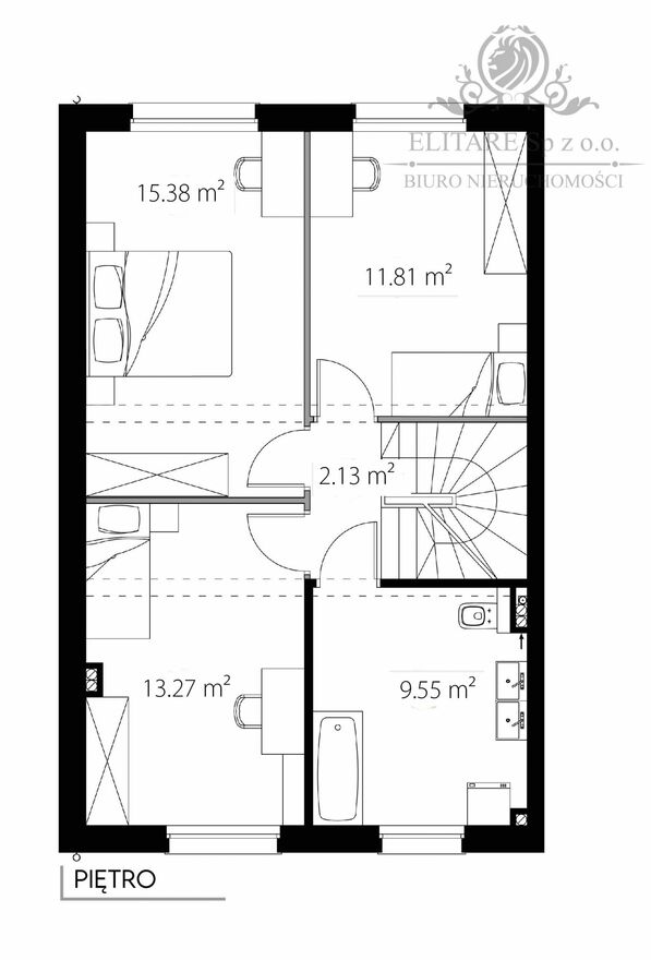
PIĘTRO to strefa pracy i nocna, gdzie mamy 3 oddzielne pokoje o powierzchniach 15,38m2, 13,27m2 i 11,81m2 oraz duża łazienka o powierzchni 9,55m2. Na tym poziomie również mamy schody techniczne prowadzące na poddasze o powierzchni dodatkowej + 16,84m2 (nie ujętej w powierzchni użytkowej domu). W domach brak jest schodów wewnętrznych na I piętro i poddasze nieużytkowe (są do wykonania w zakresie nabywcy), ale w jednym z domów wykonano schody pokazowe, aby w pełni pokazać potencjał nabywanego Domu!

Dom oddany jest w stanie deweloperskim do własnego wykończenia, standard deweloperski zawiera między innymi:

- ogrzewanie podłogowe z pompą ciepła i zasobnikiem na wodę ciepłą

- parapety wewnętrzne – PCV

- instalacje elektryczne – biały montaż

- panelowe ogrodzenie działki, miejsce postojowe przed domem wykończone w kostce brukowej, całość tworzy spójne i zagospodarowane kameralne osiedle wyposażone w pełną infrastrukturę, tj. wodociąg, kanalizację sanitarną, prąd, kanalizację deszczową odprowadzającą wody opadowe poza teren osiedla.

Lisowice to urocza miejscowość tuż obok dużej miejscowości - Kąty Wrocławskie około 5 km od Dworca PKP w Kątach Wrocławskich i około 15 km od granicy Wrocławia. Inwestycja położona jest w otulinie Parku Krajobrazowego Doliny Bystrzycy, jednocześnie w niedalekiej odległości od granic Kątów Wrocławskich i Wrocławia. Bliskość przyrody i miasta to naprawdę dobre połączenie.

Inwestycja Gotowa i oddana do użytkowania, zakup od dewelopera bez PCC i bez prowizji

Zapraszam na prezentacje na inwestycji

Ania Cieślak - Doradca klienta

tel. 535 - pokaż numer telefonu -

@

Nr oferty 02/AC/2025

Zamieszczone na naszych stronach informacje nie stanowią oferty w rozumieniu Kodeksu Cywilnego oraz nie stanowią oferty handlowej w myśl Art.66 par. 1 Kodeksu cywilnego.

OFERTA CENOWA AKTUALNA NA DZIEŃ 2110.2025 I OBOWIĄZUJE DO DNIA 21.10.2025
Sprawdź zainteresowanie tym ogłoszeniem
Wyświetlenia
Data dodania
Ostatnio widziany
Obserwujących
Wysłane zapytania
Odsłony telefonu
Powiadom o podobnych ogłoszeniach
Lokalizacja: Lisowice
Kategoria: Nieruchomości » Domy » Sprzedaż
Cena: od 502000 zł do 679000 zł Powierzchnia : od 94 m2 do 127 m2

Chcę otrzymywać powiadomienia o nowych ofertach

Uzupełnij adres e-mailWpisz poprawny adres e-mail
Wyślij wiadomość

Wyślij wiadomość

Konto firmowe
Na Lento.pl od 03 lip 2022
Odpowiada szybko
Strona użytkownika
  • Wypromuj
  • Zgłoś naruszenie
  • Drukuj ulotkę
  • Edytuj/usuń
Wyczyść historię

Udostępnij ogłoszenie

Udostępnij na FacebookUdostępnij na X Kopiuj link do ogłoszenia

Dodaj notatkę

Opis musi być krótszy niż 250 znaków